Neubau: 3-Zimmer-Wohnung mit Süd-Balkon










- Objektart
- Wohnung
- Objekttyp
- Etagenwohnung
- Vermarktungsart
- Kauf
- PLZ
- 86480
- Ort
- Aletshausen
- ImmoNr
- SA-25-12-413
- Wohnfläche
- ca. 94 m²
- Anzahl Zimmer
- 3
- Anzahl Badezimmer
- 1
- Kaufpreis
- 424.000,00 €
- Außen-Provision
- Käuferprovisionsfrei
Beschreibung
Startklar für die neue KfW-Förderung (Effizienzhaus 55): Dieser Neubau erfüllt durch seinen hohen Energiestandard und den Verzicht auf Öl und Gas die Kriterien der neuen staatlichen Förderung, die ab dem 16.12.2025 startet. Sichern Sie sich jetzt diese Chance auf ein zukunftssicheres Zuhause mit attraktiven Konditionen (KfW-Standard)!(Hinweis: Die finale Förderzusage obliegt der zuständigen Bewilligungsstelle und wird nicht garantiert.)
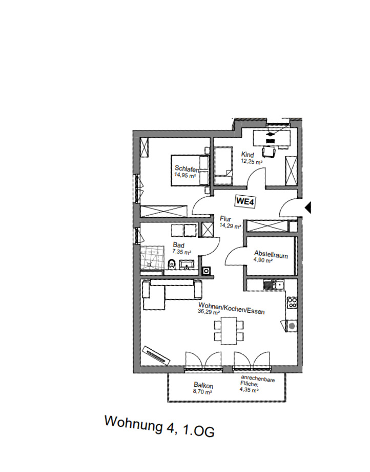
Die hier angebotene 3-Zimmer-Wohnung im 1. Obergeschoss des modernen Neubauprojekts in Aletshausen überzeugt durch eine durchdachte Raumaufteilung, helle Wohnbereiche und einen sonnigen Balkon mit idealer Südausrichtung. Im Zentrum von Aletshausen entsteht ein hochwertiges Mehrfamilienhaus mit nur acht Einheiten, das in Massivbauweise errichtet wird und den KfW-Effizienzhaus-55-Standard erfüllt. Ausgestattet mit Fußbodenheizung, Aufzug sowie einer gemeinschaftlichen PV-Anlage bietet das Gebäude modernen Wohnkomfort auf hohem Niveau. Jede Wohnung erhält ein eigenes Kellerabteil; zusätzliche Stellplätze und Garagen können separat erworben werden. Die Bauzeit beträgt rund 1,5 Jahre, der Baubeginn ist für Anfang 2026 geplant, sobald die Hälfte der Wohnungen verkauft ist.
Die ca. 94 m² große Wohnung besticht durch einen großzügigen, offenen Wohn-, Koch- und Essbereich, der durch große Fenster viel Licht erhält und direkten Zugang zum Südbalkon bietet. Die Wohnung ist zudem bequem über den Aufzug erreichbar. Das ruhig gelegene Schlafzimmer bietet ausreichend Platz und schafft eine angenehme Rückzugsmöglichkeit. Ein weiteres Zimmer lässt sich flexibel als Kinder-, Arbeits- oder Gästezimmer nutzen. Das moderne Tageslichtbad mit bodengleicher Dusche präsentiert sich ebenso hochwertig. Hochwertige Materialien, moderne Fliesen sowie stilvolle Vinylböden verleihen der Wohnung ein elegantes und zugleich wohnliches Ambiente. Abgerundet wird das Raumangebot noch durch einen Abstellraum.
Diese attraktive 3-Zimmer-Wohnung eignet sich ideal für Paare oder kleine Familien, die ein modernes, lichtdurchflutetes Zuhause mit durchdachtem Grundriss suchen. Auch für Berufstätige, die ein zusätzliches Arbeitszimmer wünschen, bietet die Wohnung optimale Voraussetzungen. Dank der hochwertigen Bauweise und der energieeffizienten Ausstattung ist sie zudem für Kapitalanleger interessant, die eine wertbeständige Immobilie bevorzugen.
Wenn Sie Interesse an dieser Wohnung haben oder weitere Informationen zu den Eigentumswohnungen in diesem Neubauprojekt wünschen, freuen wir uns auf Ihre Kontaktaufnahme. Gerne beraten wir Sie persönlich, beantworten Ihre Fragen ausführlich und informieren Sie über alle verfügbaren Wohneinheiten in diesem attraktiven Bauvorhaben.
Lage
In einer ruhigen und dennoch hervorragend angebundenen Lage entsteht dieses attraktive Mehrfamilienhaus in Aletshausen – ein Ort, der ländliche Idylle mit angenehmer Nähe zur Stadt verbindet. Die charmante Gemeinde liegt nur wenige Minuten von Krumbach entfernt und bietet damit eine ideale Kombination aus entspannter Wohnatmosphäre und bester Erreichbarkeit aller Einrichtungen des täglichen Bedarfs.Aletshausen selbst überzeugt durch seine naturnahe Lage mit Rad- und Wanderwegen sowie angrenzenden Wäldern, die zahlreiche Möglichkeiten für Freizeit und Erholung bieten. Familien schätzen besonders den örtlichen Kindergarten; die Grundschule befindet sich in nur drei Kilometern Entfernung in Niederraunau, weiterführende Schulen wie Mittelschule, Realschule und Gymnasium sind in Krumbach schnell erreichbar.
Der kleine Bahnhof liegt in fußläufiger Nähe und verbindet die Gemeinde komfortabel mit dem regionalen Bahnnetz. Zahlreiche Buslinien und der flexibel nutzbare Flexibus ergänzen das Angebot. Mit dem Auto sind die Autobahnen A7, A8 und A96 in kurzer Zeit erreichbar, ebenso wie größere Städte der Region, darunter Günzburg, Mindelheim, Augsburg und Ulm.
Einkaufsmöglichkeiten, Ärzte, Fachärzte, MVZ und ein Krankenhaus befinden sich in Krumbach, während das aktive Vereinsleben und die umliegende Natur zusätzliche Freizeitangebote direkt vor der Haustür bieten. So entsteht hier ein Zuhause, das Ruhe, Lebensqualität und beste Anbindung ideal vereint.
Ausstattung
- Wohnfläche: ca. 94 m²- 3 Zimmer
- Offener Wohn-, Koch- und Essbereich
- Bad mit bodengleicher Dusche, WC, Waschbecken und Waschmaschinenanschluss
- Balkon mit Süd-Ausrichtung
- Kellerabteil
- Stellplätze und Garagen zusätzlich erhältlich
- Barrierefreie Gestaltung
- KfW Effizienzhaus 55 Standard
- Massivbauweise
- Pelletheizung
- PV-Anlage für die Gemeinschaft
- Bauzeit ca. 1,5 Jahre, Baubeginn Anfang 2026
- Ideal für Singles, Paare, Senioren oder Kapitalanleger
Hinweis zur Visualisierung:
Um Ihnen einen besseren Eindruck von den räumlichen Möglichkeiten der Eigentumswohnungen zu vermitteln, wurden ausgewählte Bereiche virtuell mittels Home Staging visualisiert. Die gezeigte Einrichtung dient ausschließlich der Inspiration. Im Exposé und in der Anzeige finden Sie daher teilweise visualisierte Darstellungen, die beispielhaft zeigen, wie die Wohnung nach Fertigstellung und Möblierung aussehen könnte. Die Einrichtung selbst ist nicht Bestandteil des Angebots.
Sonstige Angaben
Startklar für die neue KfW-Förderung (Effizienzhaus 55): Dieser Neubau erfüllt durch seinen hohen Energiestandard und den Verzicht auf Öl und Gas die Kriterien der neuen staatlichen Förderung, die ab dem 16.12.2025 startet. Sichern Sie sich jetzt diese Chance auf ein zukunftssicheres Zuhause mit attraktiven Konditionen (KfW-Standard)!(Hinweis: Die finale Förderzusage obliegt der zuständigen Bewilligungsstelle und wird nicht garantiert.)
Aktuell sind nur einzelne Wohnungen online inseriert. Insgesamt entstehen 8 Eigentumswohnungen mit 2 bis 4 Zimmern, jeweils mit Balkon oder Terrasse – vom Erdgeschoss bis ins Dachgeschoss.
Bei Interesse an weiteren Wohneinheiten sprechen Sie uns gerne an – wir gehen gemeinsam durch, welche Wohnungen noch verfügbar sind, und senden Ihnen auf Wunsch alle Grundrisse und Details zu.
Hinweis zum Energieausweis gemäß § 80 Abs. 4 GEG:
Das hier angebotene Objekt befindet sich derzeit in der Bauplanung. Ein Energieausweis liegt daher noch nicht vor. Gemäß § 80 Abs. 4 GEG wird dieser nach Fertigstellung des Gebäudes erstellt und anschließend zur Verfügung gestellt.
Rechtshinweis:
Da wir Objektangaben nicht selbst ermitteln, übernehmen wir hierfür keine Gewähr. Dieses Exposé ist nur für Sie persönlich bestimmt. Eine Weitergabe an Dritte ist an unsere ausdrückliche Zustimmung gebunden und unterbindet nicht unseren Provisionsanspruch bei Zustandekommen eines Vertrages. Alle Gespräche sind über unser Büro zu führen. Bei Zuwiderhandlung behalten wir uns Schadenersatz bis zur Höhe der Provisionsansprüche ausdrücklich vor. Zwischenverkauf ist nicht ausgeschlossen.
Ansprechpartner
Frau Sabrina Abele
Dominic Zell Immobilien
Ulrichstraße 15
89257 Illertissen
Telefon1
07303 9012290
mobile
0175 8789611
Seiten: 1