Charmantes EFH mit Schwedenofen & Terrasse – 2019 renoviert, ca. 125 m², bezugsfertig



















- Objektart
- Haus
- Objekttyp
- Einfamilienhaus
- Vermarktungsart
- Kauf
- PLZ
- 87727
- Ort
- Babenhausen
- ImmoNr
- SA-26-03-434
- Wohnfläche
- ca. 125 m²
- Grundstücksgröße
- ca. 237 m²
- Anzahl Zimmer
- 5
- Anzahl Badezimmer
- 1
- Kaufpreis
- 334.000,00 €
- Baujahr
- 1929
- Endenergiebedarf
- 227,9 kWh/(m²a)
- Energieausweis
- Bedarfsausweis
- Energieausweis gültig bis
- 02.02.2036
- Energieeffizienzklasse
- G
- Außen-Provision
- 3,57 % inkl. 19 % MwSt. vom beurkundeten Kaufpreis
- wesentlicher Energieträger
- Gas
Beschreibung
Dieses charmante Einfamilienhaus ist der ideale Rückzugsort für Menschen, die ein gemütliches Zuhause mit Charakter suchen und ihre Freizeit lieber auf der Terrasse als mit intensiver Gartenpflege verbringen möchten. Schon beim Betreten der Immobilie spürt man die besondere Atmosphäre, die durch die geschickte Kombination aus historischem Charme und modernen Akzenten entstanden ist. Auf ca. 125 m² Wohnfläche bietet das Haus ein behagliches Raumangebot, das durch die heutigen Eigentümer 2019 mit viel Liebe zum Detail umfassend und zeitgemäß Renoviert wurde.Das Herzstück im Erdgeschoss ist der offene Ess- und Küchenbereich mit angrenzendem Wohnzimmer. Die moderne Markenküche in zeitlosem Design fügt sich perfekt in das Gesamtbild ein und bildet den kommunikativen Mittelpunkt des Hauses. Besonders gemütlich wird es durch die sichtbaren Zierbalken und den schönen Schwedenofen, der an kalten Tagen für wohlige Wärme sorgt. Von der Küche aus gelangen Sie direkt auf die Terrasse – ein wunderbarer Ort für entspannte Feierabende oder ein kleines Kräuterbeet. Praktisch ergänzt wird diese Ebene durch ein modernisiertes Gäste-WC und einen funktionalen Hauswirtschaftsraum mit allen nötigen Anschlüssen.
Die Modernisierungen der letzten Jahre ziehen sich konsequent durch das gesamte Gebäude: So wurden nicht nur die Böden erneuert und die Wände frisch verputzt, sondern auch eine neue Haustür sowie moderne Fenster eingebaut. Für ein angenehmes Klima sorgt die 2019 installierte Gasbrennwertheizung inklusive neuer Heizkörper. Im Obergeschoss, das ganz ohne einschränkende Dachschrägen auskommt, erwartet Sie neben drei hellen Zimmern ein modern gestaltetes Tageslichtbad, das mit einer elektrischen Fußbodenheizung für zusätzlichen Komfort ausgestattet wurde.
Abgerundet wird das Platzangebot durch den vollunterkellerten Bereich und den Dachspitz, der bei Bedarf weiteres Ausbaupotenzial bereithält. Direkt am Haus stehen Ihnen zudem drei hintereinander angeordnete Außenstellplätze zur Verfügung. Dieses Haus ist weit mehr als nur eine Immobilie – es ist ein liebevoll gepflegtes Nest, das bereit für seine neuen Bewohner ist. Wir freuen uns darauf, Ihnen diesen Wohntraum bei einer persönlichen Besichtigung näherzubringen.
Lage
Die angebotene Immobilie liegt in einer gut angebundenen Wohnlage im Markt Babenhausen (Unterallgäu, Bayern) mit einer ausgewogenen Mischung aus urbaner Versorgung und ländlicher Lebensqualität. Einkaufsmöglichkeiten für den täglichen Bedarf, Bäckereien, Fachgeschäfte sowie Apotheken und ärztliche Praxen sind im Ort vorhanden und gut erreichbar, sodass kurze Wege im Alltag gewährleistet sind.Für Familien ist die Lage besonders attraktiv: In Babenhausen gibt es eine Grundschule vor Ort, und auch weiterführende Schulangebote werden direkt in der Gemeinde mit einer Mittelschule und der Anton-Fugger-Realschule angeboten. Diese schulische Vielfalt erleichtert den täglichen Schulweg und sorgt für eine gute Betreuung der Kinder in allen Altersstufen. Zudem stehen mehrere Kindergärten und Kindertagesstätten mit unterschiedlichen Betreuungsmodellen zur Verfügung.
Die Verkehrsanbindung ist sehr praktisch: Babenhausen ist über ein regionales Busnetz gut ins Umland eingebunden, und die nahegelegenen Bahnhöfe in Illertissen oder Kellmünz bieten Zugang zum Regionalverkehr. Über das gut ausgebaute Straßennetz bestehen darüber hinaus schnelle Verbindungen in die umliegenden Städte und Regionen.
Das historische Ortszentrum mit seinem Marktplatz, Cafés und Gastronomie lädt zum Bummeln und Verweilen ein. Zahlreiche Vereine, Sport- und Freizeitangebote sowie die naturnahe Umgebung des Günztals mit Wander- und Radwegen bieten vielfältige Möglichkeiten zur Freizeitgestaltung und Erholung.
Ausstattung
- Einfamilienhaus, zentral gelegen- Ca. 125 m² Wohnfläche, ca. 273 m² Grundstück
- Baujahr ca. 1929 (laut Eigentümer, keine Gewähr), Bauakten ab 1956
- EG: offene Küche, Ess- und Wohnbereich mit Zierbalken
- Markenküche im modernen Design, Schwedenofen im Wohnzimmer
- Terrasse mit Zugang von der Küche, kleine Grünfläche möglich
- Hauswirtschaftsraum, Gäste-WC im EG
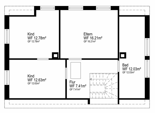
- OG: 3 Zimmer (eins Durchgangszimmer), Tageslichtbad, heller Flur
- Dachspitz ausbaufähig
- Vollunterkellert
- 3 Außenstellplätze hintereinander
- 2019 modernisiert: Fenster, Heizung, Böden, Bäder, Haustür, Terrasse, Wohnbereich geöffnet
- 1990 modernisiert: Elektrik, Wasserleitungen, teilweise Umbaumaßnahmen, Balkon entfernt und Kellerzugang geändert
- Ideal für Paare oder Familien, die keinen großen Garten benötigen
Sonstige Angaben
Das ursprüngliche Baujahr wird von den Eigentümern auf ca. 1929 datiert, eine Gewähr hierfür kann jedoch nicht übernommen werden; Bauakten liegen ab 1956 vor.Wir freuen uns, Ihnen diese Immobilie persönlich präsentieren zu dürfen. Um den Besichtigungstermin optimal für Sie gestalten zu können, bitten wir Sie vorab um die Vorlage einer Finanzierungsbestätigung. Diese muss nicht spezifisch für diese Immobilie ausgestellt sein, sollte jedoch die ungefähre Kaufsumme abdecken. Vielen Dank für Ihr Verständnis – wir freuen uns auf Ihre Kontaktaufnahme und die gemeinsame Besichtigung!
Rechtshinweis:
Da wir Objektangaben nicht selbst ermitteln, übernehmen wir hierfür keine Gewähr. Dieses Exposé ist nur für Sie persönlich bestimmt. Eine Weitergabe an Dritte ist an unsere ausdrückliche Zustimmung gebunden und unterbindet nicht unseren Provisionsanspruch bei Zustandekommen eines Vertrages. Alle Gespräche sind über unser Büro zu führen. Bei Zuwiderhandlung behalten wir uns Schadenersatz bis zur Höhe der Provisionsansprüche ausdrücklich vor. Zwischenverkauf ist nicht ausgeschlossen.
Ansprechpartner
Frau Sabrina Abele
Dominic Zell Immobilien
Ulrichstraße 15
89257 Illertissen
Telefon1
07303 9012290
mobile
0175 8789611
Seiten: 1